Techwar TQ0002

Techwar TQ0002

Що Ви шукаєте?

Techwar TQ0002

В наявності
Код товару:
11930017855
210022,00 грн
Основні параметри
Докладніше
Стан Новий
Опис
TECHWAR ДВОКОЛОННИЙ Автоматичний підйомник з верхнім з'єднанням tq0002

верхня балка

підйомник Tq0002 < /b > оснащений верхньою балкою, що з'єднує колони. У стандартних двоколонних домкратах на рівні підлоги встановлюється муфта, в якій знаходяться компоненти трансмісії, такі як ланцюг, Карданний вал, гідравлічні лінії і т.д. в залежності від виробника поріг між колонами може бути від40 мм до90 мм < /B> у висоту. Ця перешкода часто перешкоджає проходженню візка для інструментів, Масляної раковини, підстави для ящиків і т.д. поріг також є великою перешкодою при в'їзді на станцію на автомобілях з більш низькою підвіскою.

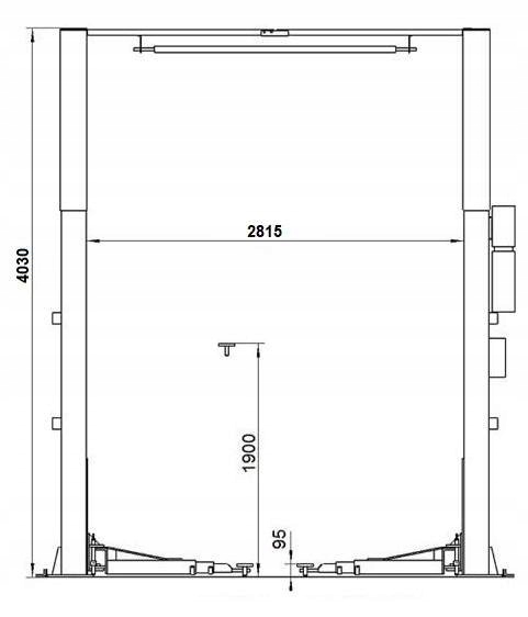
загальна висота

4050 мм

подовжена конструкція колон ( 4050 мм ) в моделі TQ0002 є одним з найбільш важливих переваг цього підйомника. Верхня балка не є перешкодою для обслуговування більш високих позашляховиків і позашляховиків.

універсальне застосування

всі важелі підйомника мають 3-секційну телескопічну конструкцію. Найкоротша відстань між плечима ( 690mm) дозволяє піднімати невеликі Легкові автомобілі. Максимальна відстань між плечима ( 1600mm) необхідно для стабільної настройки і безпечної експлуатації довгих фургонів. Руки в домкраті асиметричні і розгортаються назовні, що дозволяє підтримувати оптимальний баланс підйомного транспортного засобу. У стандартному обладнанні підйомника є два комплекти проставок з висотою 52 ммі 120 мм. Вони необхідні при експлуатації фургонів з брезентом, а також позашляховиків, що піднімаються за раму. Опори, розміщені під транспортним засобом, викручуються і прикріплюються засувкою до плечей і проставок.

Автоматичний підйомник

перевага автоматичного підйомника полягає в зручному управлінні процесом підйому і опускання за допомогою кнопок на панелі управління, без необхідності вручну відпускати замок на кожній колонці. Рішення скорочує час роботи підйомника, так як працівникові не потрібно переходити на іншу сторону транспортного засобу для зняття блокування. Обидві колонки мають соленоїди, які автоматично відключають блокування при натисканні кнопки опускання на панелі управління.

безпека

система запобіжних засувок активується автоматично при підйомі автомобіля. Крім того, кінцевий вимикач зупиняє процес підйому в той момент, коли підйомник досягає максимальної висоти. Кінцевий вимикач також встановлений в найнижчому положенні підйомних візків, завдяки чому перевантаження гідравлічної системи були зведені до мінімуму. Крім того, підйомні візки оснащені гумовим захистом, що захищає двері автомобіля від пошкоджень. Домкрат також оснащений попереджувальним звуковим сигналом, що інформує персонал про роботу домкрата під час опускання автомобіля. На панелі управління також є аварійний вимикач, який дозволить негайно припинити роботу підйомника в небезпечній ситуації.

багаторічна довговічність

точність виготовлення компонентів не тільки збільшує термін служби підйомника, але і гарантує кращий комфорт роботи. Спеціальна конструкція електромагнітних замків гарантує безшумну роботу підйомника. Висока якість використовуваних матеріалів є гарантією надійного використання підйомника протягом багатьох років. Механічні елементи підйомника (ланцюг, привід, напрямні, троси) закріплюються спеціальними гратами, встановленими з внутрішньої сторони кожної з Колон. Рішення забезпечує чудову довговічність підйомних компонентів протягом усього терміну служби і виключає ризик пошкодження при зварюванні або шліфуванні в безпосередній близькості від машини.

документи для UDT

всі двостійкові підйомники Techwar мають діючий сертифікат CE, виданий уповноваженим органом Європейського Союзу, і відповідають необхідним вимогам для реєстрації в управлінні технічного нагляду. Разом з підйомником Ви отримуєте два примірники технічної документації. Будівельні та електричні документи, а також протокол складання, знайдений в документації підйомника, необхідні для подачі підйомника.

сервіс

мобільний сервіс виконує всі гарантійні ремонтні роботи у клієнта, в тому місці, де встановлений підйомник. Завдяки цьому наші клієнти мають повний контроль над ходом ремонту або огляду і, перш за все, не втрачають часу на розбирання, відправку і повторну збірку ремонтованих або замінних компонентів. У нас є всі стандартизовані деталі для наших підйомників, витратні елементи (троси, слайди, гумові елементи), а також механічні, гідравлічні та електричні компоненти.

Підготовка підстави

основні вимоги до підготовки підстави для установки двостійкового домкрата:

основні розміри підстави: Довжина-4000 мм, ширина-1000 мм, Глибина – 300 мм

поверхня, на якій буде встановлений домкрат, повинна бути однорідною і плоскою.

допустима різниця до 0,5 см на 3 м в довжину.

підстава, на якому буде встановлений домкрат, має бути попередньо виготовленим і сухим не менше 15 днів, що гарантує отримання належного опору.

наявність кольору: < /B >

< ul >
  • синій
  • Червоний
  • Translated by AiTranslate api services.