MELL 3T SNX300 Pro подсознательный ножничный подъемник

MELL 3T SNX300 Pro подсознательный ножничный подъемник

Що Ви шукаєте?

MELL 3T SNX300 Pro подсознательный ножничный подъемник

В наявності
Код товару:
11999612351
269574,00 грн
Основні параметри
Докладніше
Стан Новий
Опис
SXN300 PRO
  • домкрат предназначен для крепления на полу (высота после складывания только 112 мм).
  • управление лифтом безопасным напряжением 24 В от внешнего блока управления
  • гидравлические предохранительные устройства на случай внезапной утечки масла или перегрузки.
  • датчики экстремального и безопасного положения платформ. звуковой сигнал заключительной фазы спуска.
  • цвет рейды - темно-синий

ТЕХНИЧЕСКИЕ характеристики:

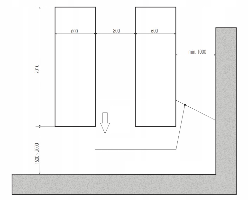
  • ГРУЗОПОДЪЕМНОСТЬ: 3000 кг
  • ПИТАНИЕ: 230В/50 гц
  • МОЩНОСТЬ ДВИГАТЕЛЯ: 2,6 квт
  • ВЫСОТА ПОДЪЕМА: 1900 мм
  • ВЫСОТА в СЛОЖЕННОМ виде: 112 мм
  • ДЛИНА ПЛАТФОРМЫ: 1570-2000 мм
  • ШИРИНА ПЛАТФОРМ: 595 мм
  • ВРЕМЯ ПОДЪЕМА: 50
  • УРОВЕНЬ ШУМА: ≤ 70 дб
  • рабочая ТЕМПЕРАТУРА: -10 ÷ 40 °C
  • МАССА: 830 кг
Podnosnik nozycowy podprogowy MELL 3T SNX300 PRO EAN 02222222222222
Podnosnik nozycowy podprogowy MELL 3T SNX300 PRO Producent code SXN300 PRO
ФОТО ДОМКРАТА ИЗ НАШИХ РЕАЛИЗАЦИИ
Podnosnik nozycowy podprogowy MELL 3T SNX300 PRO Lifting Capacity 3000 kg
Scroll To Top