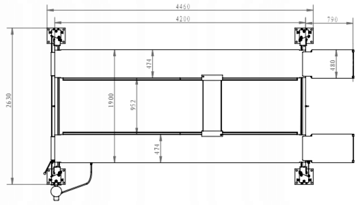
Подъемник 4-стоечный парковочный BESTLIFT 440P
Czterokolumnowy домкрат парковочный позволяет удвоить количество парковочных мест в гараже или подземном гараже. Предназначен для подъема транспортных средств общей массой до 4000 кг. Благодаря дополнительному комплекту с мобильных устройств есть возможность использовать его даже в очень тесных помещениях и перемещать его с места на место, где в данный момент нужен,
ОСОБЕННОСТИ ПРОДУКТА:
- Изготовлено в соответствии со стандартом ISO 9001
- гидравлический Цилиндр защищен от повреждений благодаря монтажу под платформой
- Механическая система замков безопасности
- Ручное освобождение блокировки
- Платформы с пандусами и защитой от падения транспортного средства
- Защита ног
- Звуковой сигнал
- CE
ВОЗМОЖНОСТЬ ПОКУПКИ В СТАВКИ НДС 8% ДЛЯ ФИЗИЧЕСКИХ ЛИЦ
