BESTLIFT 440P 4-СТОЛБЧАТЫЙ ПАРКОВОЧНЫЙ ПОДЪЕМНИК

BESTLIFT 440P 4-СТОЛБЧАТЫЙ ПАРКОВОЧНЫЙ ПОДЪЕМНИК

Що Ви шукаєте?

BESTLIFT 440P 4-СТОЛБЧАТЫЙ ПАРКОВОЧНЫЙ ПОДЪЕМНИК

В наявності
Код товару:
10680765230
295781,00 грн
Основні параметри
Докладніше
Стан Новий
Опис
ПОДЪЕМНИК CZTEROKOLUMNOWY ПАРКОВОЧНЫЙ BESTLIFT  440P
PODNOSNIK 4 KOLUMNOWY PARKINGOWY BESTLIFT 440P

Подъемник 4-стоечный парковочный BESTLIFT  440P

Czterokolumnowy домкрат парковочный позволяет удвоить количество парковочных мест в гараже или подземном гараже. Предназначен для подъема транспортных средств общей массой до 4000 кг. Благодаря дополнительному комплекту с мобильных устройств есть возможность использовать его даже в очень тесных помещениях и перемещать его с места на место, где в данный момент нужен,

ОСОБЕННОСТИ ПРОДУКТА:

  • Изготовлено в соответствии со стандартом ISO 9001
  • гидравлический Цилиндр защищен от повреждений благодаря монтажу под платформой
  • Механическая система замков безопасности
  • Ручное освобождение блокировки
  • Платформы с пандусами и защитой от падения транспортного средства
  • Защита ног
  • Звуковой сигнал
  • CE

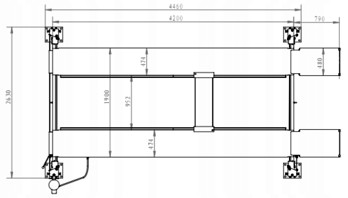
технические Данные

  • Грузоподъемность: 4000 кг
  • Max высота подъема: 1900 мм
  • Ширина платформ: 474 мм
  • Длина платформы: 4200 мм
  • Напряжение питания: 230 в
  • Мощность двигателя: 2,2 квт
  • Защита: 16
  • Вес: 850 кг
PODNOSNIK 4 KOLUMNOWY PARKINGOWY BESTLIFT 440P Producent code 440P
PODNOSNIK 4 KOLUMNOWY PARKINGOWY BESTLIFT 440P Mark Bestlift
47bd73c04d9086b92e00193016b3
Scroll To Top