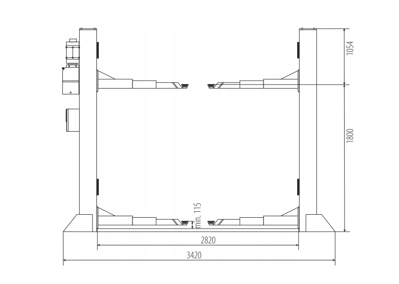
двоколонний підйомник AUTOMATYCZNY BESTLIFT 242DDE 4.2 тонни хіт !!!!
повністю автоматична електрична панель управління
приводиться в дію подвійною системою гідравлічних циліндрів
електромагнітне зняття запобіжних болтів
система підйому на ланцюга
асиметричні 2 - і 3-ступінчаті підйомні важелі
автоматичне блокування безпеки підйомних важелів
простота в експлуатації завдяки кнопкам підйому і опускання на блоці управління
сталеві троси для синхронізації підйому обох візків
регульовані гумові прокладки і адаптери
широка платформа для з'єднання колон
міцне порошкове покриття елементів
