Домкрат две колонки Launch TLT-235 SB
Описание
- Ручная разблокировка блокировки.
- для синхронизации тележек, плавающих в обеих колоннах, использовались стальные тросы.
- механическая защита подъема, а также перегрузочный и концевой выключатель обеспечивают полную безопасность.
- возможность использования удлинителей опор для рычагов.
- в полу была закреплена балка, в которую были проложены синхронизирующие тросы и гидравлический шланг.
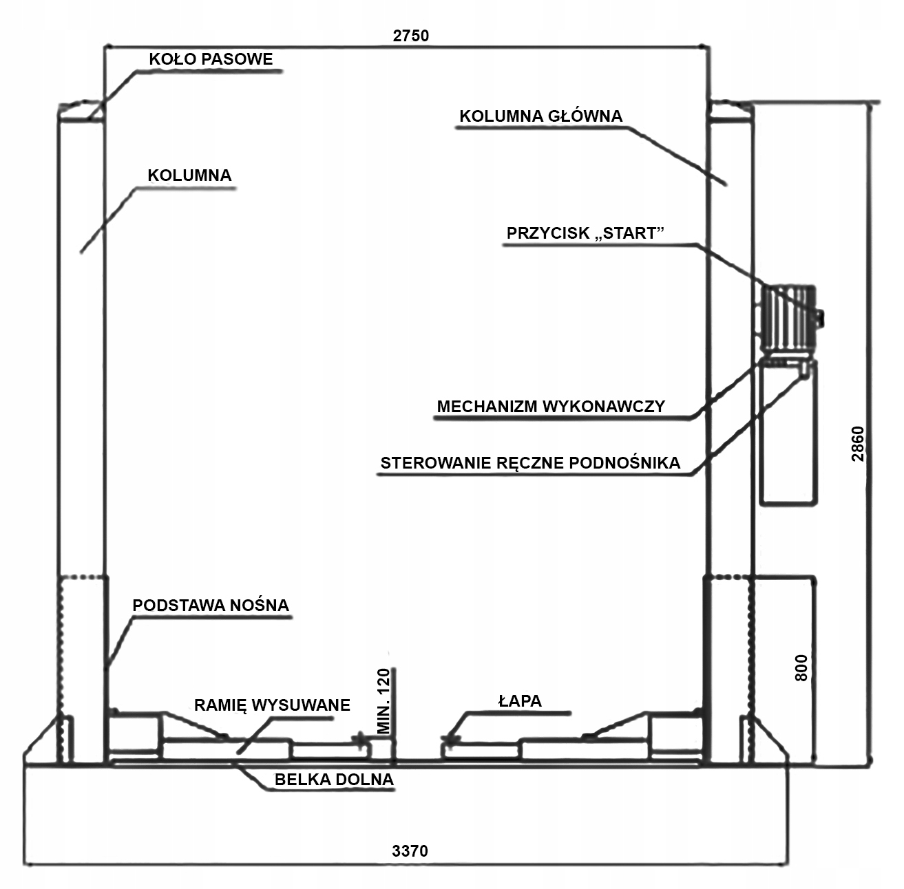
Дополнительная информация
- Грузоподъемность: 3500 кг
- Время подъема: 50 с
- ширина: 3370 мм
- Общая высота: 2860 мм
- Минимальная высота: 120 мм
- Max высота подъема: 1950 мм
- Вес: 630 кг
- Гарантия: 12 месяцев
