код среза: [7236]
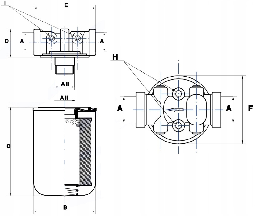
линейный фильтр для гидравлических систем низкого давления устанавливается во внешних гидравлических системах на линии всасывания / возврата.
имеет очень широкое применение в гидравлике, защищает хрупкие компоненты комплекта типа насоса и распределителя от повреждений.
может быть установлен непосредственно в бак.
фильтр оснащен специальным клапаном, так называемым bypass, который обеспечивает обход масляной струи в случае загрязнения и блокировки фильтрующей сетки. клапан, открывающийся при 0,25 бар на всасывании / 1,7 бар на возврате-предохраняет фильтр от разрыва.
мы рекомендуем выбирать фильтры с относительно большим расходом, чем требуется в вашей гидравлической системе.
причина этого в том, что применение густого масла или довольно низкая отрицательная температура может привести к снижению расхода до 40%.п>
